Cửa Sổ 4 Cánh Mở Quay Nhôm Maxpro Hệ R65: Đẳng Cấp & Bền Bỉ

Nhôm kính Đại Phúc Cửa sổ 4 cánh mở quay nhôm Maxpro hệ R65

Cửa sổ 4 cánh mở quay nhôm Maxpro hệ R65

Giá bán
Liên hệ
Liên hệ

Trong kiến trúc hiện đại, cửa sổ không chỉ đơn thuần là nơi lấy sáng, đón gió mà còn là điểm nhấn thẩm mỹ, khẳng định phong cách và đẳng cấp của gia chủ. Bạn đang tìm kiếm một giải pháp cửa sổ không chỉ đẹp về hình thức, bền bỉ với thời gian mà còn phải đáp ứng những tiêu chuẩn kỹ thuật khắt khe nhất? Cửa sổ 4 cánh mở quay nhôm Maxpro hệ R65 chính là câu trả lời hoàn hảo, một tuyệt tác kỹ thuật đến từ Nhật Bản, mang đến sự sang trọng, an toàn và tiện nghi vượt trội cho mọi công trình.

Hãy cùng Nhôm Kính Đại Phúc khám phá chi tiết về dòng sản phẩm cao cấp này và lý do tại sao nó lại trở thành lựa chọn hàng đầu cho các biệt thự, resort, và căn hộ hạng sang hiện nay.

[Hình ảnh: Một công trình biệt thự sang trọng sử dụng hệ thống cửa sổ 4 cánh mở quay nhôm Maxpro hệ R65, tôn lên vẻ đẹp hiện đại và đẳng cấp]

Giới Thiệu Tổng Quan Về Nhôm Maxpro - Tiêu Chuẩn Chất Lượng Nhật Bản

Trước khi đi sâu vào sản phẩm cửa sổ 4 cánh mở quay, việc hiểu rõ về thương hiệu "linh hồn" của sản phẩm - nhôm Maxpro là vô cùng cần thiết. Đây không chỉ là một cái tên, mà là một bảo chứng cho chất lượng đỉnh cao.

Nguồn Gốc và Uy Tín Thương Hiệu Maxpro

Nhôm Maxpro là thương hiệu nhôm cao cấp được sản xuất theo công nghệ và tiêu chuẩn của LIXIL - tập đoàn vật liệu xây dựng và thiết bị nhà ở hàng đầu Nhật Bản. Mỗi thanh profile nhôm Maxpro ra đời là kết tinh của quy trình sản xuất nghiêm ngặt, kiểm định chất lượng gắt gao theo tiêu chuẩn công nghiệp Nhật Bản (JIS), đảm bảo sự đồng nhất và độ chính xác đến từng milimet.

Tại Sao Nhôm Maxpro Lại Được Giới Kiến Trúc Sư Tin Dùng?

Không phải ngẫu nhiên mà nhôm Maxpro chinh phục được những kiến trúc sư và chủ đầu tư khó tính nhất. Sự ưu ái này đến từ những giá trị cốt lõi:

  • Chất lượng vượt trội: Độ bền cao, chống chịu va đập, không cong vênh, co ngót dưới tác động của thời tiết khắc nghiệt.
  • Thẩm mỹ tinh tế: Bề mặt sơn tĩnh điện hoặc anode cao cấp, màu sắc sang trọng, bền màu theo thời gian.
  • Giải pháp đồng bộ: Cung cấp hệ thống profile, phụ kiện và giải pháp kỹ thuật đồng bộ, đảm bảo sự vận hành hoàn hảo cho toàn bộ hệ cửa.

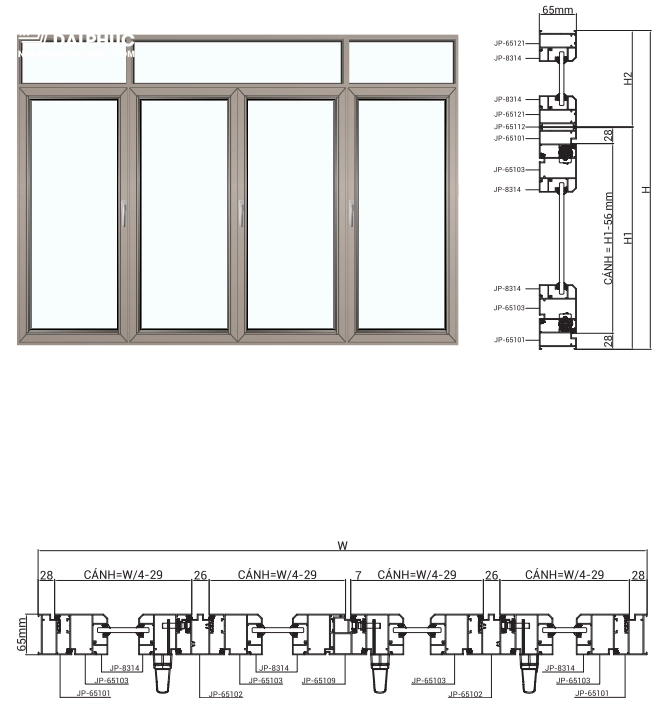
Cấu Tạo Chi Tiết Cửa Sổ 4 Cánh Mở Quay Nhôm Maxpro Hệ R65

Vẻ đẹp và sự bền bỉ của cửa sổ 4 cánh mở quay nhôm Maxpro hệ R65 được tạo nên từ sự kết hợp hoàn hảo của các thành phần cấu tạo cao cấp. Mỗi chi tiết đều được tính toán kỹ lưỡng để tối ưu hóa công năng và tuổi thọ sản phẩm.

Sơ đồ cấu tạo chi tiết của cửa sổ 4 cánh mở quay nhôm Maxpro R65
Sơ đồ cấu tạo chi tiết của cửa sổ 4 cánh mở quay nhôm Maxpro R65

Thanh Profile Nhôm Maxpro Hệ R65 Chính Hãng

Đây chính là "xương sống" quyết định đến 80% chất lượng của bộ cửa.

  • Độ dày vượt trội: Thanh profile của hệ R65 có độ dày tiêu chuẩn từ 1.4mm - 2.0mm, tạo nên bộ khung cửa cực kỳ vững chãi, chắc chắn.
  • Kết cấu khoang rỗng thông minh: Bên trong thanh nhôm được thiết kế nhiều khoang rỗng, kết hợp với các đường gân gia cường giúp tăng khả năng chịu lực, chống xoắn vặn và đặc biệt là tăng cường khả năng cách âm, cách nhiệt.
  • Công nghệ xử lý bề mặt Anodize ED đỉnh cao: Điểm khác biệt lớn nhất của nhôm Maxpro là công nghệ xử lý bề mặt Anodize ED độc quyền. Lớp phủ này không chỉ tạo ra màu sắc sang trọng mà còn tạo thành một lớp "áo giáp" siêu cứng, chống ăn mòn muối biển, chống bám bụi và chống trầy xước hiệu quả gấp nhiều lần so với sơn tĩnh điện thông thường.

Hệ Kính An Toàn, Đa Dạng Lựa Chọn

Một bộ cửa cao cấp không thể thiếu hệ kính tương xứng. Cửa sổ nhôm Maxpro tương thích với nhiều loại kính:

  • Kính cường lực: Chịu lực va đập tốt, an toàn khi vỡ.
  • Kính dán an toàn: Gồm 2 hay nhiều lớp kính được dán với nhau bằng lớp film PVB, khi vỡ các mảnh kính vẫn bám dính, đảm bảo an toàn tuyệt đối.
  • Kính hộp (cách âm, cách nhiệt): Cấu tạo từ 2 lớp kính và 1 lớp khí trơ ở giữa, là giải pháp tối ưu để cách âm, chống nóng, tiết kiệm năng lượng điện cho điều hòa.

Hệ Phụ Kiện Kim Khí Đồng Bộ Cao Cấp

Để cửa sổ 4 cánh mở quay vận hành trơn tru, êm ái và an toàn, hệ phụ kiện đóng vai trò then chốt. Nhôm Kính Đại Phúc cam kết sử dụng phụ kiện kim khí đồng bộ, cao cấp từ các thương hiệu hàng đầu như Cmech, Kinlong,... bao gồm:

  • Bản lề chữ A hoặc bản lề 2D: Chịu tải trọng lớn, giúp cửa mở được ở các góc độ khác nhau.
  • Tay nắm, khóa đa điểm: Thiết kế sang trọng, cơ cấu khóa đa điểm giúp cửa được khóa chặt tại nhiều vị trí, tăng cường khả năng chống trộm.
  • Thanh chống gió: Giữ cho cánh cửa không bị gió dập mạnh, đảm bảo an toàn khi sử dụng.

Hệ Gioăng EPDM Kép Chống Lão Hóa

Hệ gioăng EPDM (cao su tổng hợp) được sử dụng cho cửa sổ nhôm Maxpro hệ R65 có độ đàn hồi cao, chống chịu thời tiết tốt, không bị lão hóa hay co ngót như các loại gioăng cao su thông thường. Thiết kế gioăng kép đảm bảo độ kín khít tuyệt đối giữa khung và cánh, ngăn nước mưa, bụi bẩn và tiếng ồn xâm nhập vào nhà.

10+ Ưu Điểm Vượt Trội "Đáng Đồng Tiền Bát Gạo" Của Cửa Sổ Mở Quay 4 Cánh Maxpro R65

Đầu tư vào cửa sổ 4 cánh mở quay nhôm Maxpro hệ R65 là một quyết định đầu tư thông minh. Tại sao? Hãy xem những lợi ích không thể phủ nhận mà nó mang lại.

  1. Độ Bền Vượt Thời Gian: Tuổi thọ lên đến hàng chục năm mà không lo cong vênh, mối mọt hay oxy hóa.
  2. Cách Âm Tuyệt Vời: Kết cấu profile khoang rỗng, hệ gioăng kép và kính hộp tạo thành một "bức tường" vững chắc, ngăn chặn hiệu quả tiếng ồn từ bên ngoài, mang lại không gian yên tĩnh tuyệt đối.
  3. Cách Nhiệt Hoàn Hảo: Giảm thiểu sự truyền nhiệt, giúp ngôi nhà mát mẻ vào mùa hè, ấm áp vào mùa đông, tiết kiệm đáng kể chi phí điện năng.
  4. Kín Nước Tuyệt Đối: Thiết kế rãnh thoát nước thông minh cùng hệ gioăng kín khít ngăn nước mưa thấm vào nhà, ngay cả trong điều kiện mưa bão lớn.
  5. An Toàn Chống Trộm Cao: Khung nhôm cứng vững, khóa đa điểm, kính an toàn tạo thành một hệ thống bảo vệ đáng tin cậy cho ngôi nhà của bạn.
  6. Thẩm Mỹ Đẳng Cấp: Thiết kế tinh tế, màu sắc sang trọng (ghi xám, anode, vân gỗ...), cửa sổ nhôm Maxpro nâng tầm giá trị thẩm mỹ cho toàn bộ công trình.
  7. Vận Hành Êm Ái, Nhẹ Nhàng: Nhờ hệ phụ kiện đồng bộ cao cấp, việc đóng mở cửa trở nên vô cùng dễ dàng và trơn tru.
  8. Tối Đa Tầm Nhìn và Ánh Sáng: Kiểu cửa sổ 4 cánh mở quay cho phép mở rộng tối đa không gian (lên đến 100% diện tích ô chờ), giúp đón ánh sáng và gió tự nhiên một cách tối ưu, tạo sự thông thoáng cho căn phòng.
  9. Dễ Dàng Vệ Sinh, Bảo Dưỡng: Bề mặt nhôm được xử lý công nghệ cao, chống bám bụi, dễ dàng lau chùi. Thiết kế mở quay cũng giúp việc vệ sinh cả mặt trong và mặt ngoài cửa trở nên thuận tiện.
  10. Chống Chịu Áp Lực Gió Tốt: Phù hợp lắp đặt cho các tòa nhà cao tầng, khu vực ven biển thường xuyên có gió lớn.

Thông Số Kỹ Thuật Chi Tiết Của Cửa Sổ Nhôm Maxpro Hệ R65

Để quý khách hàng có cái nhìn rõ ràng nhất, Nhôm Kính Đại Phúc xin cung cấp bảng thông số kỹ thuật tiêu chuẩn của sản phẩm.

Hạng mục Thông số chi tiết
Thanh Profile Nhôm Maxpro Japan Aluminium hệ R65 chính hãng
Độ dày nhôm Khuôn bao và cánh dày 1.4mm - 2.0mm (±5%)
Màu sắc Xám ghi, Nâu cà phê, Trắng, Đen, Anode, Vân gỗ...
Kích thước Sản xuất và lắp đặt theo kích thước thực tế của công trình
Kính Kính an toàn, kính cường lực, kính hộp. Độ dày từ 6.38mm đến 21mm
Phụ kiện Cmech, Kinlong, Sigico... đồng bộ, chính hãng
Gioăng Hệ gioăng kép EPDM cao cấp, kín khít tuyệt đối
Keo Keo Dow Corning, Soudal... chịu nước, chống tia UV
Bảo hành Chính hãng theo tiêu chuẩn của nhà sản xuất

Ứng Dụng Thực Tế Của Cửa Sổ 4 Cánh Mở Quay Maxpro

Với những ưu điểm vượt trội, cửa sổ 4 cánh mở quay nhôm Maxpro hệ R65 là sự lựa chọn lý tưởng cho các không gian đòi hỏi sự sang trọng, tầm nhìn rộng và độ an toàn cao:

  • Biệt thự, Villa, Penthouse: Tạo không gian mở, kết nối với thiên nhiên và sân vườn.
  • Resort, Khách sạn cao cấp: Mang lại trải nghiệm nghỉ dưỡng đẳng cấp cho du khách.
  • Tòa nhà văn phòng, Showroom: Tôn lên vẻ chuyên nghiệp, hiện đại của doanh nghiệp.
  • Phòng khách, phòng ngủ có diện tích lớn: Cần tối đa hóa ánh sáng tự nhiên và sự thông thoáng.

Nhôm Kính Đại Phúc – Đơn Vị Thi Công Cửa Sổ 4 Cánh Mở Quay Nhôm Maxpro Hệ R65 Uy Tín, Chuyên Nghiệp

Việc lựa chọn được sản phẩm tốt mới chỉ là 50% thành công. 50% còn lại phụ thuộc hoàn toàn vào năng lực của đơn vị thi công, lắp đặt. Nhôm Kính Đại Phúc tự hào là đối tác tin cậy, mang đến cho bạn giải pháp cửa nhôm Maxpro hoàn hảo nhất.

Tại Sao Nên Chọn Nhôm Kính Đại Phúc?

  • Cam Kết Hàng Chính Hãng: Chúng tôi chỉ cung cấp và thi công nhôm Maxpro hệ R65 chính hãng 100%, có đầy đủ CO, CQ. Nói không với hàng giả, hàng kém chất lượng.
  • Đội Ngũ Kỹ Thuật Lành Nghề: Đội ngũ thợ có kinh nghiệm lâu năm, được đào tạo bài bản về kỹ thuật lắp đặt cửa nhôm Maxpro, đảm bảo độ chính xác, an toàn và thẩm mỹ cao nhất.
  • Tư Vấn Tận Tâm: Đội ngũ chuyên viên sẵn sàng khảo sát tận nơi, tư vấn giải pháp tối ưu và phù hợp nhất với kiến trúc cũng như ngân sách của bạn.
  • Giá Cả Cạnh Tranh: Là đối tác trực tiếp của nhà cung cấp, chúng tôi mang đến cho bạn một báo giá cửa sổ nhôm Maxpro cạnh tranh nhất thị trường.
  • Quy Trình Chuyên Nghiệp: Từ khâu tư vấn, báo giá, ký hợp đồng đến sản xuất, lắp đặt và nghiệm thu đều được thực hiện một cách minh bạch, chuyên nghiệp.

Cam Kết Chất Lượng và Chế Độ Bảo Hành Dài Hạn

Tại Nhôm Kính Đại Phúc, mỗi sản phẩm cửa sổ 4 cánh mở quay nhôm Maxpro hệ R65 trước khi xuất xưởng đều được kiểm tra kỹ lưỡng. Chúng tôi áp dụng chế độ bảo hành dài hạn cho thanh profile nhôm và phụ kiện, mang lại sự an tâm tuyệt đối cho khách hàng trong suốt quá trình sử dụng.

Kết Luận

Cửa sổ 4 cánh mở quay nhôm Maxpro hệ R65 không chỉ là một bộ cửa, đó là một khoản đầu tư xứng đáng cho chất lượng sống, cho sự an toàn và cho vẻ đẹp trường tồn của công trình. Với sự kết hợp giữa vật liệu đỉnh cao từ Nhật Bản và kinh nghiệm thi công chuyên nghiệp của Nhôm Kính Đại Phúc, bạn sẽ sở hữu một không gian sống đẳng cấp, tiện nghi và bền vững.

Đừng ngần ngại! Hãy liên hệ ngay với chúng tôi qua hotline để được tư vấn miễn phí và nhận báo giá cửa sổ 4 cánh mở quay nhôm Maxpro hệ R65 tốt nhất ngay hôm nay!


5 Câu Hỏi Thường Gặp (FAQs)

1. Lớp phủ Anodize ED trên nhôm Maxpro có gì khác biệt so với sơn tĩnh điện thông thường? Lớp phủ Anodize ED là quá trình điện phân tạo ra một lớp oxit nhôm siêu cứng trên bề mặt, sau đó phủ thêm một lớp ED. Lớp phủ này cứng hơn, chống trầy xước và chống ăn mòn (đặc biệt là ăn mòn muối biển) tốt hơn gấp nhiều lần so với sơn tĩnh điện vốn chỉ là một lớp sơn phủ bên ngoài.

2. Cửa sổ 4 cánh mở quay có phù hợp cho chung cư cao tầng, nơi có gió lớn không? Hoàn toàn phù hợp. Nhôm Maxpro hệ R65 có kết cấu cứng vững, khả năng chịu áp lực gió cao. Kết hợp với thanh chống gió và hệ khóa đa điểm, cửa đảm bảo an toàn tuyệt đối ngay cả ở những vị trí cao tầng chịu tác động mạnh của gió.

3. Quy trình bảo dưỡng cửa sổ nhôm Maxpro R65 có phức tạp không? Rất đơn giản. Bạn chỉ cần dùng khăn mềm ẩm để lau chùi bề mặt khung nhôm và kính định kỳ. Tránh sử dụng các chất tẩy rửa có tính axit hoặc kiềm mạnh. Nên kiểm tra và tra dầu cho các bộ phận phụ kiện kim khí khoảng 6 tháng/lần để đảm bảo vận hành trơn tru.

4. Nhôm Kính Đại Phúc làm thế nào để chứng minh nhôm Maxpro là hàng chính hãng? Chúng tôi luôn cung cấp đầy đủ giấy chứng nhận xuất xứ (CO), giấy chứng nhận chất lượng (CQ) của sản phẩm. Trên mỗi thanh nhôm Maxpro chính hãng đều có tem điện tử chống hàng giả và mã QR code để khách hàng có thể quét và truy xuất nguồn gốc sản phẩm.

5. Tôi có thể tùy chỉnh hướng mở của 4 cánh cửa sổ không? Chắc chắn rồi. Cửa sổ 4 cánh mở quay có thể được thiết kế linh hoạt theo yêu cầu của bạn, ví dụ: 2 cánh mở quay ra ngoài ở giữa và 2 cánh cố định hai bên, hoặc cả 4 cánh cùng mở quay ra ngoài, hoặc 2 cánh quay vào trong và 2 cánh quay ra ngoài. Nhôm Kính Đại Phúc sẽ tư vấn phương án tối ưu nhất cho không gian nhà bạn.

Thông tin liên hệ:
Công Ty TNHH Nhôm Kính Đại Phúc